BIDDING OPENS in...

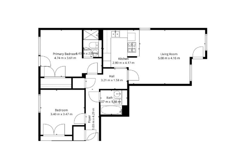
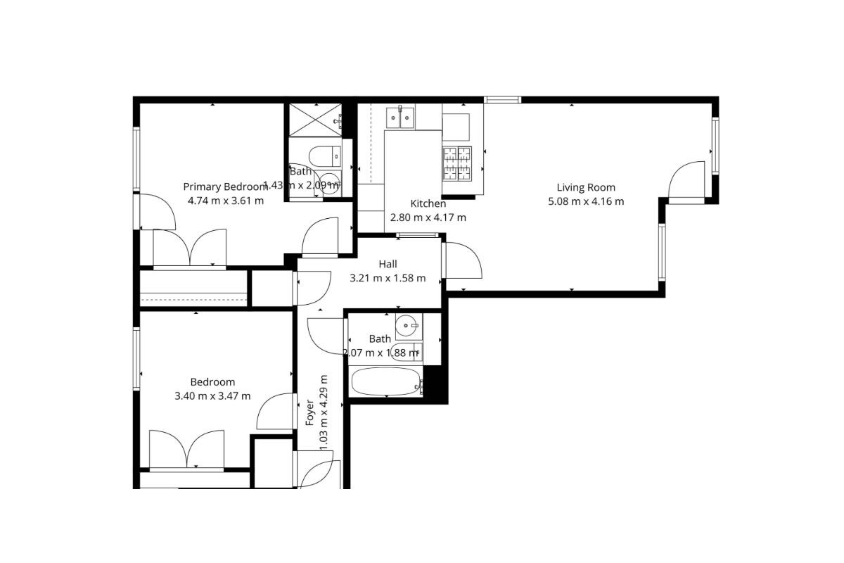
Plans

10  East Pilton Farm Crescent, Flat 1  Edinburgh, Mid Lothian

Click to Enlarge Floorplan Image

Description

  • Status: Available
  • Type: Flat
  • Ownership: Freehold
  • Occupation: Vacant
  • Bedrooms: 2
  • Council Tax: Search

Modern Edinburgh 2 Bedroom Ground Floor Apartment within a 5 Storey block of 15 units. Superb modern residential development built circa 2006. Buy to let rental estimate £1,250 per month (£15,000pa)

Internally comprising Entrance Hall, Open plan living/dining/kiitchen, 2 bedrooms, bathroom and ensuite shower room. Total floor area approx 80 sq m.

The Property Benefits from: Gas Central Heating with combi boiler, UPVC Double Glazed windows, Secured Door Entry and Well Kept Communal Areas.

The property is situated just off Ferry Road at Crewe Toll and well connected to the city centre by regular public transport.

The area provides excellent local shopping amenities with Morrison Superstore, Waitrose Supermarket on Comely Bank Road, Craigleith Retail Park , ASDA Newhaven and well placed for the Ocean Terminal.

The Property is also well placed for Leisure facilities to include: Ainslie Park Leisure Centre and Westwood Health Club. The property is also walkable distance to Telford College, the Western General Hospital and Fettes college. For recreational amenities some of Edinburgh s finest open spaces are short walk away at Inverleith Park, Royal Botanic Gardens and a cycle path which takes you to the City Centre and Leith. The City Bypass is a short drive away offering routes around the city and to the A1 and East coast as well as the M8 and M9 motorways.

Full Address: 10 East Pilton Farm Crescent, Flat 1, Edinburgh, Mid Lothian, EH5 2GH

Show More

Map & Location

Map   Street View   Satellite

Document Downloads

Home Report (Available)   Legal Docs (Pending)

* If no Special Conditions of Sale are present in the legal docs download bidders are advised to request a copy by email prior to bidding.

 * Click the above 'Pending' document link to log your request and we will notify you once available.

Tours & Media

View Video Tour


Pricing Information & Bidding

Opening Bid: £175,000

What is an Opening Bid? This property is entered into an online auction where the bidding will start or open at the above price. Unless specified all properties are subject to a Reserve (minimum acceptable price).

How to Bid... To take part in the online auction you must firstly create a bidding account. Once you have a bidding account you can then login and place bids during the auction. Please click on the following link to view the latest Online Auction Bidders Guide now.

View Live Online Auction

Offer Now... You may submit an offer now on this property for the owner to consider. If they are will are willing to sell you the property now then it is a matter of making the required deposit payment to secure the purchase. Complete our ONLINE OFFER FORM now to put your offer forward to the sellers.

Submit Offer Now

Terms of Sale

  • 10% Deposit (Minimum £3,000)
  • Buyers Fee = 3% of Sale Price (Minimum £3,250 + vat)



Payment Calculator

Please use our PAYMENT CALCULATOR to confirm the necessary reservation deposit for this property if you are successful with an offer now or bid at auction.

Payment Calculator

Auction Details

Date & Time: 11 December 2025, 10am-3pm
Type: Timed Online Auction

View Full Auction Catalogue