The subject property comprises a purpose built top floor flat forming part of a three storey and attic semi-detached tenement building containing six flats in total. Built circa 1900.
Shepherd Chartered Surveyors RICS Home Report valuation - £105,000 (One Hundred and Five Thousand Pounds). The external walls are constructed from solid pointed granite stonework. Freehold Sale.
The external walls are constructed from solid pointed granite stonework with the rear stack of roughcast brickwork construction with the gable wall having been repointed earlier this year.
Gas is from the mains public supply. The gas meter is located within the hallway. Water is from the mains public supply. The flat enjoys views over the city from the rear of the building.
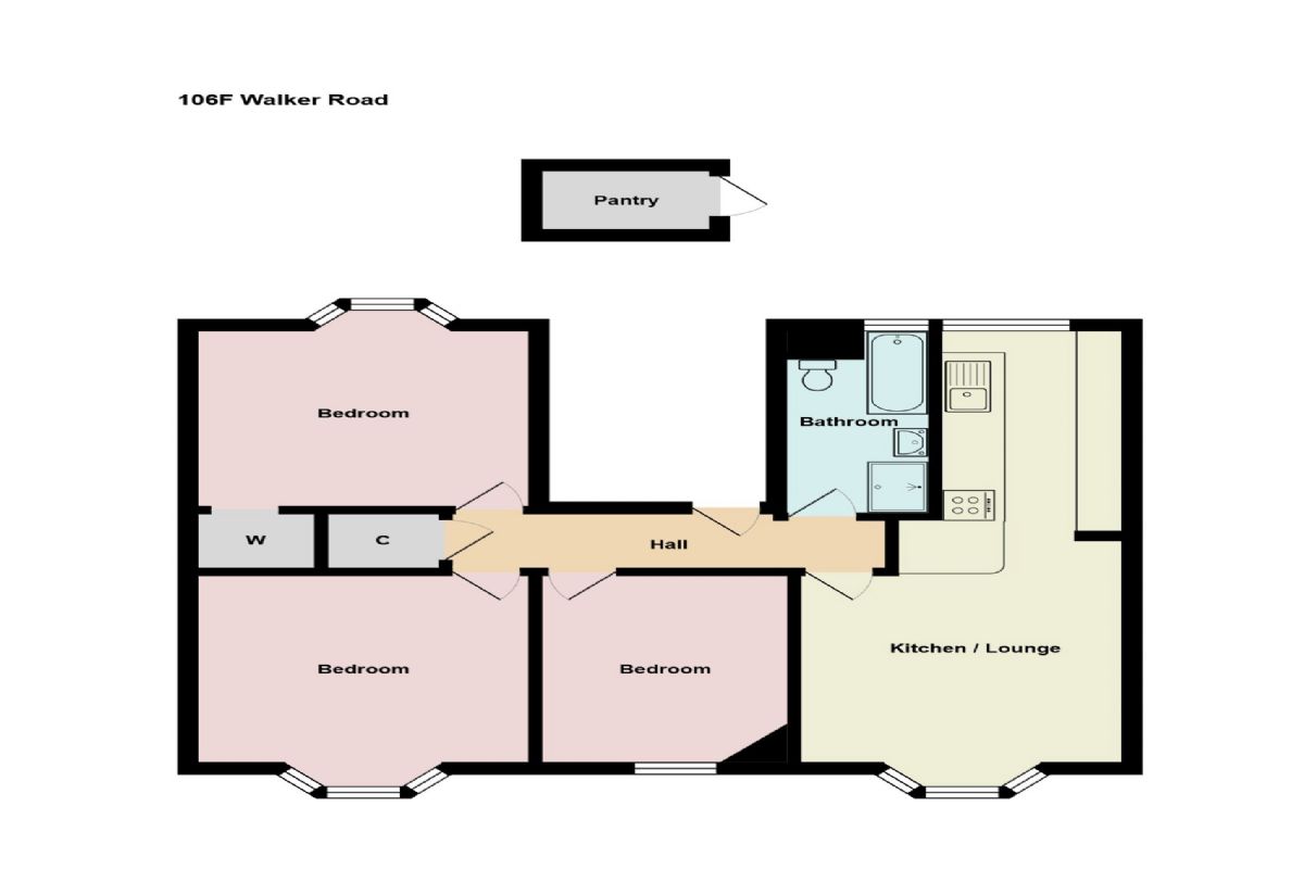
Three bedroom, top floor flat, which forms part of a traditional granite building with its common areas accessed by security entry system at ground level. The subjects are accessed via a shared internal hallway and stairs which is entered through a timber panel entrance door with a security intercom system installed. The hallway is lined out in traditional lath and plaster with daylighting provided by timber casement single glazed windows. A timber staircase with matching handrail provides access to the upper floors. Spacious Three Bedroom Top Floor Flat. J & E Shepherd Chartered Surveyors - £105,000 (Home Report). The accommodation comprises of - Entrance Hallway, Living room and breakfast kitchen (Open Plan), Three Bedrooms, four-piece bathroom and private loft access. The Loft is accessible from from the flat hallway via a Ramsay Ladder. It has lighting throughout with power points and runs the entire length of the building. The subject property has an exclusive store located off the top floor half landing which has a power point and can accommodate a freezer which acts as a store/pantry. Heating is provided by a gas central heating system and all windows are double glazed. There is solid bamboo flooring in the hallway and living room with the double front bedroom is oak floored while the back double bedroom features a walk in wardrobe. White goods, light fittings and blinds will be included. Outside there is on street parking and a very well-maintained shared rear garden with two exclusive outhouses. Torry is an established residential area of the City boasting a strong sense of community. Spacious Three Bedroom Top Floor Flat. J & E Shepherd Chartered Surveyors - £105,000 (Home Report). The accommodation comprises of - Entrance Hallway, Living room and breakfast kitchen (Open Plan), Three Bedrooms, four-piece bathroom and private loft access. The subject property has an exclusive store located off the top floor half landing. Features - Heating is provided by a gas central heating system and all windows are double glazed. The fitted flooring, white goods, light fittings, blinds and certain curtains will be included in the sale. Outside there is on street parking and a very well-maintained shared rear garden with two exclusive outhouses. In addition, there is a further exclusive store/pantry located on the top floor landing. Torry is an established residential area of the City boasting a strong sense of community.
The subject property forms part of an established area, where surrounding properties are of a similar style and nature, located within the Torry district which lies to the south of Aberdeen City Centre. Local amenities are varied and include a range of shops and supermarkets serving everyday needs, leisure and recreational facilities which include a swimming pool and 18-hole golf course, community activities, and regular public transport. Walker Road is situated in the thriving community of Torry, which is separated from the heart of Aberdeen by the River Dee. The area is well served by local shops and public transport facilities and offers easy access to City Centre with the location being particularly convenient for access to Union Square and the Rail and Bus Stations, and for those working at the oil related offices on the south side of the city. There is also an active social and recreational life with facilities ranging from swimming pool, community centre and golf course. TRAVEL DIRECTIONS - On crossing the Victoria Bridge into Torry continue through the first and second set of traffic lights on Victoria Road then turn right onto Walker Road. The property is situated some distance along on the right hand side of the road.
Full Address: 106 Walker Road, Flat F, Torry, Aberdeen, AB11 8BR
Show More