BIDDING OPENS in...

Plans

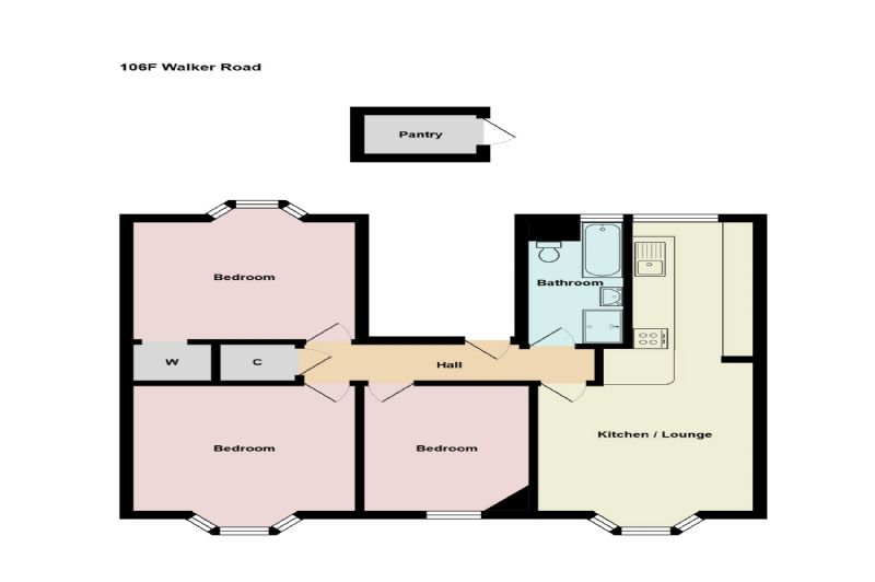
106  Walker Road, Flat F  Torry, Aberdeen

Click to Enlarge Floorplan Image

Description

  • Status: Available
  • Type: Flat
  • Ownership: Freehold
  • Occupation: Vacant
  • Bedrooms: 3
  • Council Tax: Search

The subject property comprises a purpose built top floor flat forming part of a three storey and attic semi-detached tenement building containing six flats in total. Built circa 1900.

The accommodation comprises: Top Floor Flat - Entrance Hallway, Living Room and Kitchen (open plan), Three Bedrooms and Bathroom with W.C. Net Internal Area - 78 Sq.M.

Shepherd Chartered Surveyors RICS Home Report valuation - £105,000 (One Hundred and Five Thousand Pounds). The external walls are constructed from solid pointed granite stonework. Freehold Sale.

The external walls are constructed from solid pointed granite stonework with the rear stack of roughcast brickwork construction. Walker Road is situated in the thriving community of Torry,

Gas is from the mains public supply. The gas meter is located within the hallway. Water is from the mains public supply. The flat enjoys views over the city from the rear of the building.

Three bedroom, top floor flat, which forms part of a traditional granite building with its common areas accessed by security entry system at ground level. The subjects are accessed via a shared internal hallway and stairs which is entered through a timber panel entrance door with a security intercom system installed. The hallway is lined out in traditional lath and plaster with daylighting provided by timber casement single glazed windows. A timber staircase with matching handrail provides access to the upper floors. Spacious Three Bedroom Top Floor Flat. J & E Shepherd Chartered Surveyors - £105,000 (Home Report). The accommodation comprises of - Entrance Hallway, Living room and breakfast kitchen (Open Plan), Three Bedrooms, four-piece bathroom and private loft access. The subject property has an exclusive store located off the top floor half landing. Features - Heating is provided by a gas central heating system and all windows are double glazed. The fitted flooring, white goods, light fittings, blinds and certain curtains will be included in the sale. Outside there is on street parking and a very well-maintained shared rear garden with two exclusive outhouses. In addition, there is a further exclusive store/pantry located on the top floor landing. Torry is an established residential area of the City boasting a strong sense of community.

The subject property forms part of an established area, where surrounding properties are of a similar style and nature, located within the Torry district which lies to the south of Aberdeen City Centre. Local amenities are varied and include a range of shops and supermarkets serving everyday needs, leisure and recreational facilities which include a swimming pool and 18-hole golf course, community activities, and regular public transport. Walker Road is situated in the thriving community of Torry, which is separated from the heart of Aberdeen by the River Dee. The area is well served by local shops and public transport facilities and offers easy access to City Centre with the location being particularly convenient for access to Union Square and the Rail and Bus Stations, and for those working at the oil related offices on the south side of the city. There is also an active social and recreational life with facilities ranging from swimming pool, community centre and golf course. TRAVEL DIRECTIONS - On crossing the Victoria Bridge into Torry continue through the first and second set of traffic lights on Victoria Road then turn right onto Walker Road. The property is situated some distance along on the right hand side of the road.

Full Address: 106 Walker Road, Flat F, Torry, Aberdeen, AB11 8BR

Show More

Map & Location

Map   Street View   Satellite

Document Downloads

Home Report (Available)   Legal Docs (Pending)

* If no Special Conditions of Sale are present in the legal docs download bidders are advised to request a copy by email prior to bidding.

 * Click the above 'Pending' document link to log your request and we will notify you once available.

Pricing Information & Bidding

Opening Bid: £75,000

What is an Opening Bid? This property is entered into an online auction where the bidding will start or open at the above price. Unless specified all properties are subject to a Reserve (minimum acceptable price).

How to Bid... To take part in the online auction you must firstly create a bidding account. Once you have a bidding account you can then login and place bids during the auction. Please click on the following link to view the latest Online Auction Bidders Guide now.

View Live Online Auction

Offer Now... You may submit an offer now on this property for the owner to consider. If they are will are willing to sell you the property now then it is a matter of making the required deposit payment to secure the purchase. Complete our ONLINE OFFER FORM now to put your offer forward to the sellers.

Submit Offer Now

Terms of Sale

  • 10% Deposit (Minimum £3,000)
  • Standard Completion (Unless specified differently in any Special Conditions of Sale)
  • Buyers Fee = 3% of Sale Price (Minimum £3,250 + vat)

STANDARD TERMS OF SALE are 4 week completion with 1 week extension. Sellers can request an earlier or later completion date which will be detailed in any Special Conditions of Sale for this lot. Buyers must satisfy themselves prior to bidding as to the terms on offer.

* If no Special Conditions of Sale are present in the legal docs download bidders are advised to request a copy by email prior to bidding.

Payment Calculator

Please use our PAYMENT CALCULATOR to confirm the necessary reservation deposit for this property if you are successful with an offer now or bid at auction.

Payment Calculator

Auction Details

Date & Time: 30 October 2025, 10am-3pm
Type: Timed Online Auction

View Full Auction Catalogue