BIDDING OPENS in...

Description

  • Status: Available
  • Type: Commercial
  • Ownership: Freehold
  • Occupation: Vacant

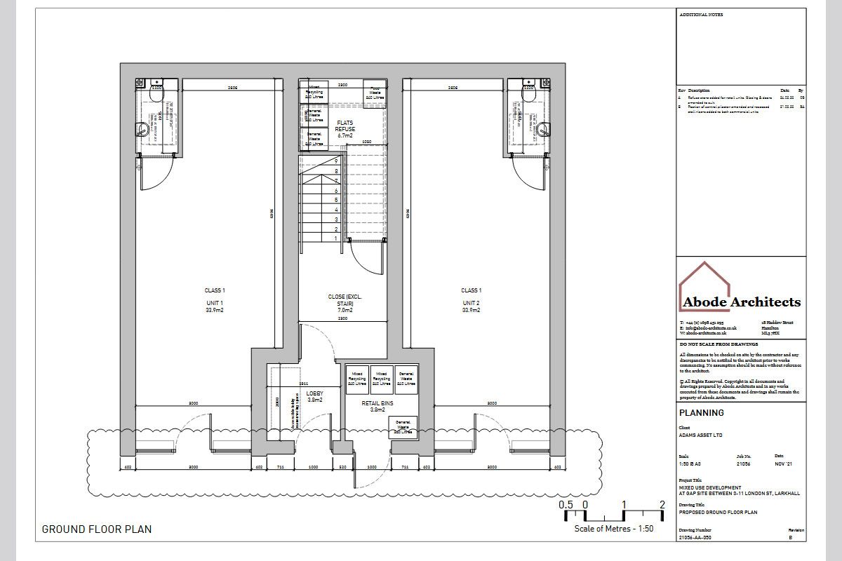
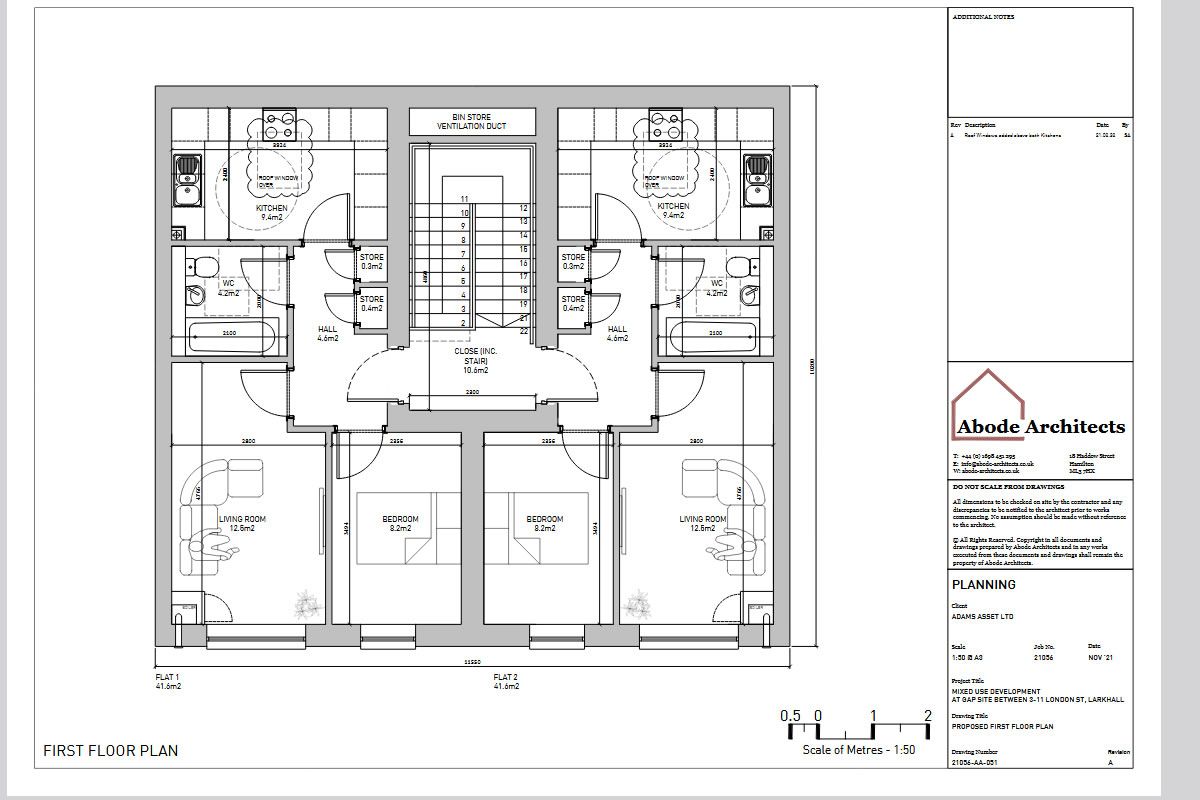
UNIQUE PRIME PURCHASE***TOWN CENTRE LOCATION** Planning Permission Granted 2 x 1 Bedroom Apartments and 2 x Commercial Units Total ERV £35,000p.a - PROPOSED DEVELOPMENT IMAGE SHOWN MAIN PICTURE.

Planning Consent has been granted by South Lanarkshire Council under planning ref P/22/1805 for a 2 storey development with 2 x commercial units at ground floor and 2 x 1 bedroom residential dwellings

The commercial units will have prominent display windows and single door entrance with w.c. facilities to the rear of each unit. Each unit has been designed to extend to 33.9sqm (365sq ft)

The apartments have been designed to offer a single bedroom, lounge, kitchen bathroom and hallway storage closet will be accessed via a single entrance door located centrally opening to a staircase.

**IDEAL PURCHASE FOR BUILDER OR DEVELOPER***Offers terrific potential once completed. Bound to appeal to a number of investors. Total ERV £35,000p.a

UNIQUE PRIME PURCHASE***TOWN CENTRE LOCATION** Planning Permission Granted 2 x 1 Bedroom Apartments and 2 x Commercial Units Total ERV £35,000p.a Planning Consent has been granted by South Lanarkshire Council under planning ref P/22/1805 for a 2 storey development with 2 x commercial units at ground floor and 2 x 1 bedroom residential dwellings The commercial units will have prominent display windows and single door entrance with w.c. facilities to the rear of each unit. Each unit has been designed to extend to 33.9sqm (365sq ft) The apartments have been designed to offer a single bedroom, lounge, kitchen bathroom and hallway storage closet will be accessed via a single entrance door located centrally opening to a staircase. **IDEAL PURCHASE FOR BUILDER OR DEVELOPER***Offers terrific potential once completed. Bound to appeal to a number of investors. Total ERV £35,000p.a

The property is situated on the east side of London Street on a busy thoroughfare through Larkhall. Larkhall is situated within the South Lanarkshire district approx 1.4 miles South East of Glasgow City Centre. The town centre is accessible via the M74 motorway along with a variety of public transport links via road and rail to Hamilton, Motherwell, Glasgow and Airdrie

Full Address: 3-11 London Street, Larkhall, ML9 1AQ

Show More

Map & Location

Map   Street View   Satellite

Document Downloads

Legal Docs (Available)

* If no Special Conditions of Sale are present in the legal docs download bidders are advised to request a copy by email prior to bidding.

Pricing Information & Bidding

Opening Bid: £45,000

What is an Opening Bid? This property is entered into an online auction where the bidding will start or open at the above price. Unless specified all properties are subject to a Reserve (minimum acceptable price).

How to Bid... To take part in the online auction you must firstly create a bidding account. Once you have a bidding account you can then login and place bids during the auction. Please click on the following link to view the latest Online Auction Bidders Guide now.

View Live Online Auction

Offer Now... You may submit an offer now on this property for the owner to consider. If they are will are willing to sell you the property now then it is a matter of making the required deposit payment to secure the purchase. Complete our ONLINE OFFER FORM now to put your offer forward to the sellers.

Submit Offer Now

SPECIAL Terms of Sale

  • 10% Deposit (Minimum £3,000)
  • Buyers Fee = 3% of Sale Price (Minimum £3,250 + vat)
  • 4 Weeks Completion or Longer By Agreement
  • Contribution to Sellers Costs £2,750 for on time settlement

VIEW THE GENERAL TERMS OF SALE which are superseded by any special conditions detailed above.

* If no Special Conditions of Sale are present in the legal docs download bidders are advised to request a copy by email prior to bidding.

Payment Calculator

Please use our PAYMENT CALCULATOR to confirm the necessary reservation deposit for this property if you are successful with an offer now or bid at auction.

Payment Calculator

Auction Details

Date & Time: 14 May 2026, 10am-3pm
Type: Timed Online Auction

View Full Auction Catalogue